Sabine Dedieu Négociatrice
Télécharger la fiche
Sous-compromis

Maison 5 pièce(s) 3 chambre(s) 116.29 m²

Frouzins (31270)
264 000 € Référence 404

A propos de ce bien

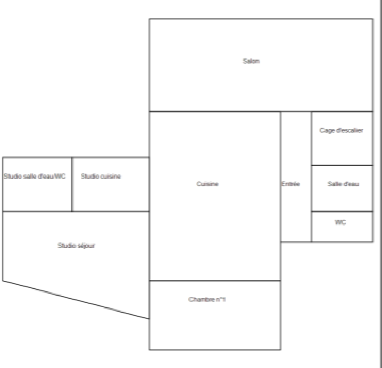
Frouzins maison T5 de 116,29 m2 avec studio indépendant de 20,09 m2 - Jardin 430 m2.


Située sur la commune de Frouzins nous vous proposons à la vente cette maison de 116,29 m2 comprenant un studio indépendant de 20,09 m2.

Une entrée dessert la cuisine aménagée et équipée de 22,21 m2 et le salon/séjour de 26,60m2. Cet espace de vie a été entièrement rénové en 2022.

Sur ce même niveau se trouve une chambre de 11,15 m2, une salle d'eau de 2,78 m2 et un wc séparé.

Au rez de jardin se trouvent deux chambres de 13,60 et 10,10 m2 ainsi qu'une buanderie pouvant être transformée en salle de bains et dressing.

Par ailleurs un studio indépendant de 20,09 m2 peut générer un rendement locatif, ou servir de chambre d'amis.

Vous disposez aussi d'un cellier et d'une cave d'environ 10 m2 chacun.

Un extérieur de 430 m2 ainsi qu'une terrasse sans vis à vis.


Composition de la maison:

Entrée: 4,19 m2.

Cuisine: 22,21 m2.

Salon/séjour: 26,60 m2.

Chambre 1: 11,15 m2.

Chambre 2: 13,60 m2.

Chambre 3: 10,10 m2.

Salle d'eau: 2,78 m2.

WC: 1 m2 .

Buanderie : 6,07 m2.

Cellier: 10,05 m2.

Cave: 10,58 m2.

Jardin environ 430 m2.

Côté prestations:

Maison rénovée en 2022.

Cuisine haut de gamme aménagée et équipée.

Fenêtres double vitrage.

Volets roulants éléctriques.

Belle luminosité.

Calme.

Studio indépendant.


Informations Pratiques:

Classement énergétique en E.

Impôt foncier: 1670€.

À 5 mn du centre de Frouzins, de la mairie et des commerces.

Ligne 58 et 87.

Honoraires à la charge du vendeur.




Caractéristiques de ce bien

  • Surface 116,29 m²
  • séjour 26 m²
  • 3 chambre(s)
  • 2 salle(s) d'eau
  • construit en 1960
  • cuisine américaine (équipée)
  • Chauffage individuel : chaudière (gaz)
  • 1 niveau(x)
  • terrasse

Diagnostics énergétiques

DPE
GES

Montant estimé des dépenses annuelles d'énergie pour un usage standard est compris entre 2 757 € et 3 731 € . Prix moyens des énergies indexés sur les années 2021, 2022 et 2023 (abonnements compris).

Informations financières

Prix de vente 264 000 € Les honoraires d'agence seront intégralement à la charge du vendeur
Taxe foncière annuelle 1 670 €

Autour du bien

  • Commerces et santé
  • Loisirs
  • Ecoles
  • Transports
  • Pratique

Calcul des mensualités

* Champs obligatoires