Sabine Dedieu Négociatrice
Vendu

Appartement 3 pièce(s) 2 chambre(s) 61.87 m²

Tournefeuille (31170)
179 000 € Référence 384

A propos de ce bien

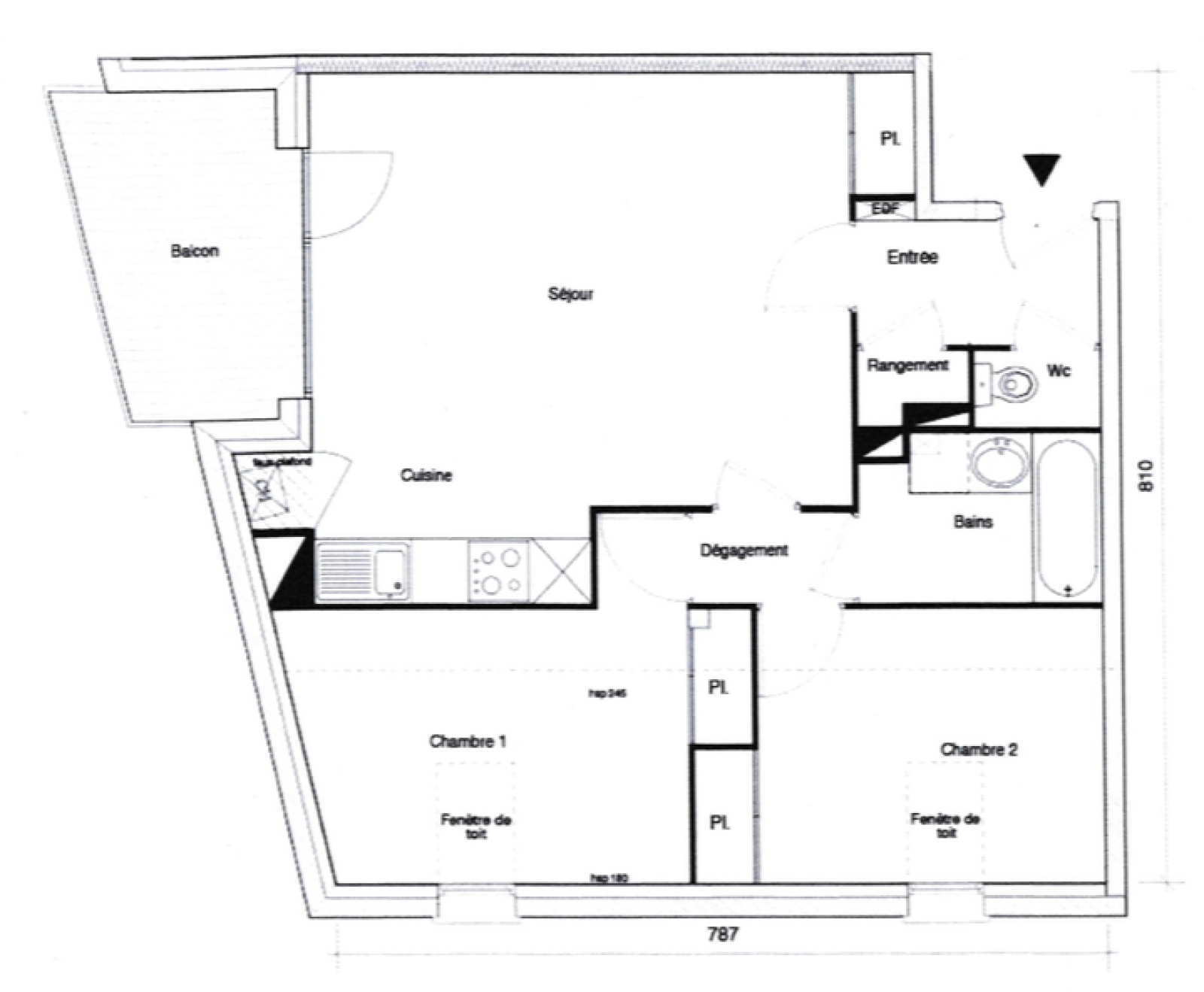
Tournefeuille - Appartement T3 de 61,87m2 - 2 places de parking en sous sol.

Situé chemin du Grillou dans une résidence en excellent état et sécurisée nous vous proposons à la vente ce T3 de 61,87 M2 avec deux places de parking en sous-sol.

Au deuxième et dernier étage l'appartement se dispose comme suit: Une entrée donnant sur l'espace de vie avec cuisine ouverte de 28 m2 avec accès direct sur la balcon de 7 m2 sans vis-à-vis. Le coin nuit offre deux chambres de presque 13 et 11 m2 avec placard, une salle de bains, un wc séparé et un cellier.

Deux places de parking en sous-sol complètent le bien.

Composition de l'appartement:

Séjour/cuisine 28 m2.

Chambre 12,50 m2.

Chambre 10,62 M2.

SDB 3,99 m2.

WC 1,05 m2.

Cellier 0,89 m2.

Dégagement 1,52 m2.

Balcon 7 m2.

Côté prestations: RT2012

Fenêtres PVC double vitrage.

Volets roulants.

Dernier étage.

Résidence fermé avec interphone.

Balcon sans vis à vis.

Informations pratiques:

Classement énergétique en A.

Charges de copropriété environ 349€/trimestre.

Impôt foncier 1257€.

À proximité immédiate de la base de loisirs de le Ramée, à 800m de l'école élémentaire, du supermarché, de la Poste... Accès rocade Arc en ciel et A64 à 5 mn en voiture. Ligne de bus 48 à 100 m et 47,53,57 58 à proximité.

Les honoraires sont à la charge du vendeur.

Pour plus d'informations veuillez contacter l'agence.

Caractéristiques de ce bien

  • Surface 61,87 m²
  • carrez 61,87 m²
  • 2 chambre(s)
  • 1 salle(s) de bain
  • cuisine américaine
  • Chauffage individuel : chaudière (gaz)
  • 2ème étage
  • 2 étage(s)
  • balcon
  • interphone

Diagnostics énergétiques

DPE
GES

Montant estimé des dépenses annuelles d'énergie pour un usage standard est compris entre 480 € et 700 € . Prix moyens des énergies indexés sur les années 2021, 2022 et 2023 (abonnements compris).

Informations financières

Prix de vente 179 000 € Les honoraires d'agence seront intégralement à la charge du vendeur
Taxe foncière annuelle 1 257 €

Autour du bien

  • Commerces et santé
  • Loisirs
  • Ecoles
  • Transports
  • Pratique

Calcul des mensualités

* Champs obligatoires