Benoît Lannes Immobilier Agence
Télécharger la fiche
Exclusivité

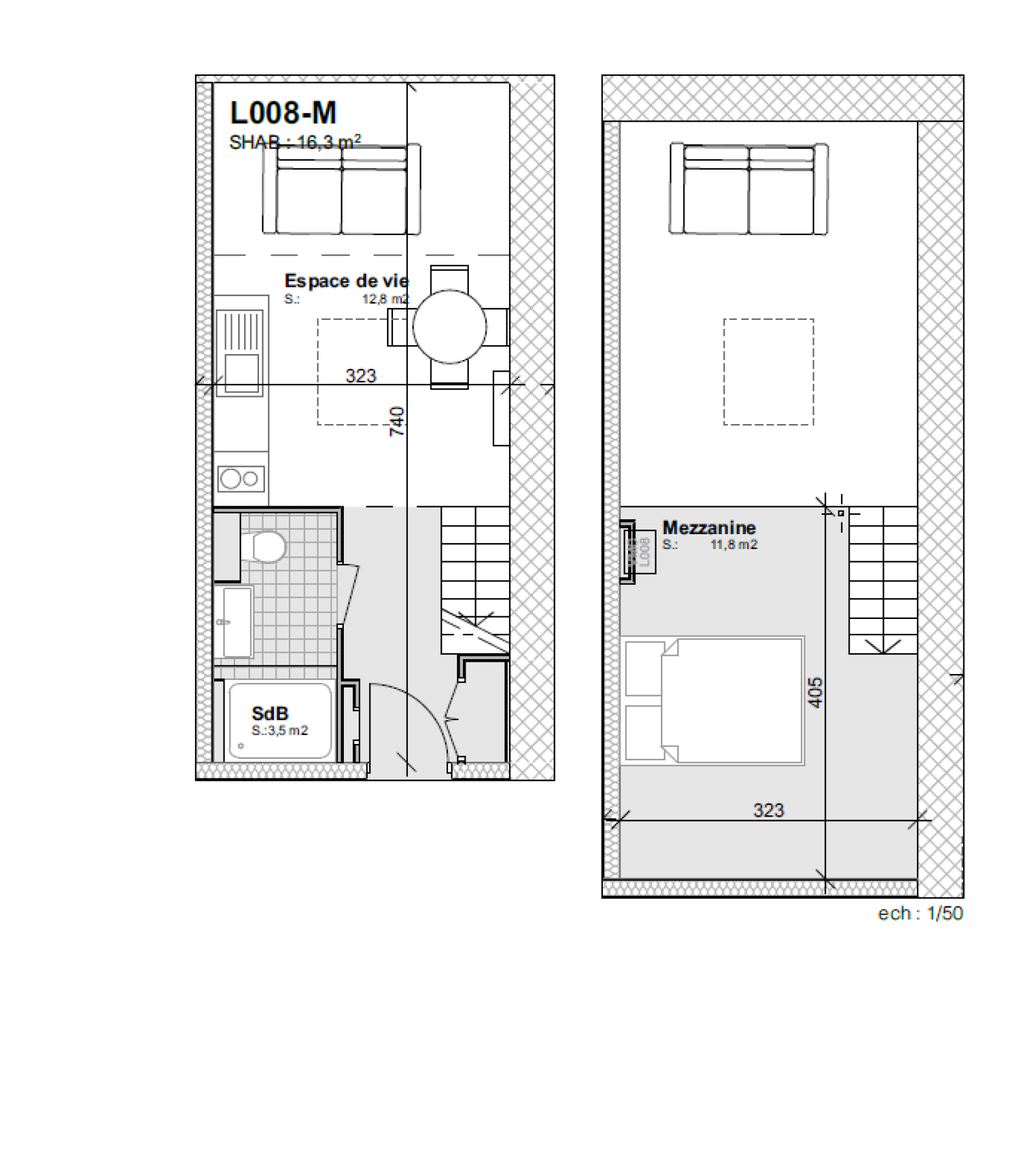
Studio 1 pièce(s) 35 m²

Toulouse (31000)
225 000 € Référence 166

A propos de ce bien

Situé sur la Place du Capitole, nous vous proposons ce studio neuf et meublé de 35 m² au sol ( dont 18 m² en carrez) entièrement rénové et équipé par un architecte. Il est situé au 4 -ème et dernier étage avec un ascenseur. Idéal pour un investisseur ou bien pour un pied à terre en plein centre-ville.

Vous disposez de tout le confort moderne (chauffage et climatisation réversible) et du charme de l’ancien avec mur en brique apparente et poutre.

Il se compose d’une pièce de vie avec canapé, d’une table et 3 chaises, une cuisine aménagée et équipée (plaque induction, hotte, micro-onde, lave-vaisselle).

Une mezzanine servant de coin nuit avec un lit double.

Une salle d’eau avec douche à l’Italienne un meuble vasque, un miroir et un wc.

La classement énergétique DPE est en D.

Pour plus d’informations veuillez contacter l’agence.


Caractéristiques de ce bien

  • Surface 35 m²
  • 1 salle(s) d'eau
  • cuisine américaine (équipée)
  • Chauffage individuel : air pulsé (pompe à chaleur)
  • 4ème étage
  • 4 étage(s)

Diagnostics énergétiques

DPE
GES
DPE en cours

Informations financières

Prix de vente 225 000 € Les honoraires d'agence seront intégralement à la charge du vendeur
Charges 80 €
Taxe foncière annuelle 650 €

Informations de copropriété

Copropriété Oui
Nombre de lots 59
Quote part annuelle des charges 960 €

Autour du bien

  • Commerces et santé
  • Loisirs
  • Ecoles
  • Transports
  • Pratique

Calcul des mensualités

* Champs obligatoires