Benoît Lannes Immobilier Agence
Télécharger la fiche

Appartement 3 pièce(s) 2 chambre(s) 110 m²

Gaillac (81600)
140 000 € Référence 505

A propos de ce bien

Appartement 110 m² à rénover au centre ville.

Situé au centre-ville de Gaillac, place de la Libération, nous vous proposons cet ensemble immobilier de 110 m² à rénover pouvant se diviser en 2 appartements. Il se situe au 1 er et 2 -ème étage d’une petite copropriété.

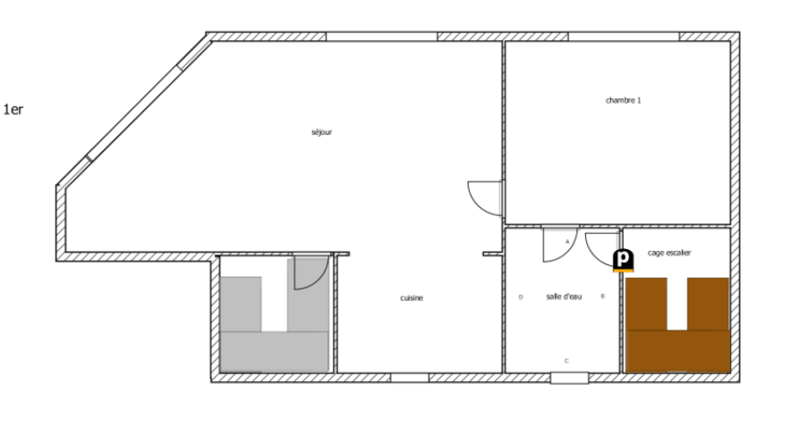
Il se compose au 1 er étage d’un séjour, une cuisine, une grande chambre pouvant se diviser en 2, une salle de bain.

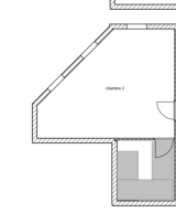
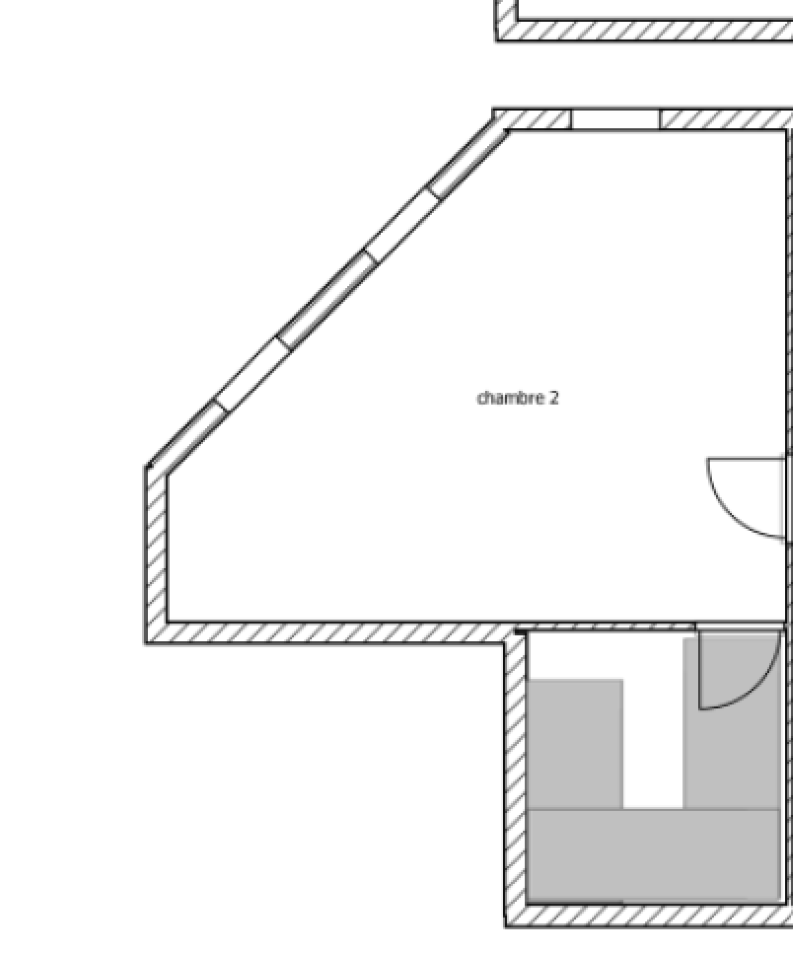
Au 2 -ème une pièce pouvant se transformer en studio ou faire une chambre supplémentaire.

Vous avez les commerces sur la place et les écoles à proximité.

 

Idéal pour faire un investissement locatif ou bien sa résidence principale.

La façade à été refaite, des travaux sont à prévoir dans l’appartement ainsi que la cage d’escalier (menuiserie, chauffage, peinture…)

 

 

Composition de l’ensemble :

Au 1 er un salon de 32 m²  avec vue sur la place.

Une cuisine ouverte de 9.5 m².

Une pièce de 34 m² pouvant se diviser en 2 chambres.

Une salle de bain avec wc de 9.4 m².

 

Au 2 eme une pièce de 25 m² pouvant servir de chambre ou bien se transformer en studio.

 

Informations pratiques :

Charge de copro 30€/mois environ.

DPE vierge car pas de système de chauffage.

 

Pour plus de renseignement veuillez contacter l’agence Benoît Lannes Immobilier.

 

Caractéristiques de ce bien

  • Surface 110 m²
  • carrez 110 m²
  • séjour 32 m²
  • 2 chambre(s)
  • 1 salle(s) de bain
  • construit en 1949
  • cuisine
  • exposition Est
  • 1 niveau(x)
  • 1er étage
  • 2 étage(s)

Diagnostics énergétiques

DPE
GES
DPE vierge

Informations financières

Prix de vente 140 000 € Les honoraires d'agence seront intégralement à la charge du vendeur

Informations de copropriété

Copropriété Oui
Quote part annuelle des charges 360 €

Autour du bien

  • Commerces et santé
  • Loisirs
  • Ecoles
  • Transports
  • Pratique

Calcul des mensualités

* Champs obligatoires