Benoît Lannes Immobilier Agence
Télécharger la fiche
Exclusivité Coup de coeur

Maison 6 pièce(s) 5 chambre(s) 156.5 m²

Toulouse (31200)
599 000 € Référence 494

A propos de ce bien

Maison T6 de 190 m² avec jardin au cœur des Sept Deniers.

Nous proposons au cœur des Sept Deniers dans une rue calme, cette maison des années 30 de type T6 de 190 m² au sol (156 m² habitable) avec son jardin piscinable sur une parcelle de 451 m² et avec un grand garage.

Elle se compose d’une grande pièce de vie en L avec salon/ séjour et sa cuisine donnant sur un jardin clôturé à l’arrière, de 5 chambres dont une suite parentale avec salle d’eau, une salle de bain, 3 wc, un garage et un abri de jardin.


Vous serez séduit par son charme des années 30 avec parquet bois massif, carreaux de ciment ancien, sa luminosité avec son exposition Est Ouest, son grand jardin piscinable et son environnement calme.

Des travaux d’embellissement sont à prévoir.

Concernant les écoles, vous dépendez du Lycée Pierre de Fermat, du collège du Pont Jumeaux et des écoles les Sept Deniers et Le Petit Gragnague.

Vous êtes à quelques minutes à pied de la future station de métro Ligne C station Sept Deniers, le bus ligne L1 et 70.

Les commerces sont à 5 minutes à pied.


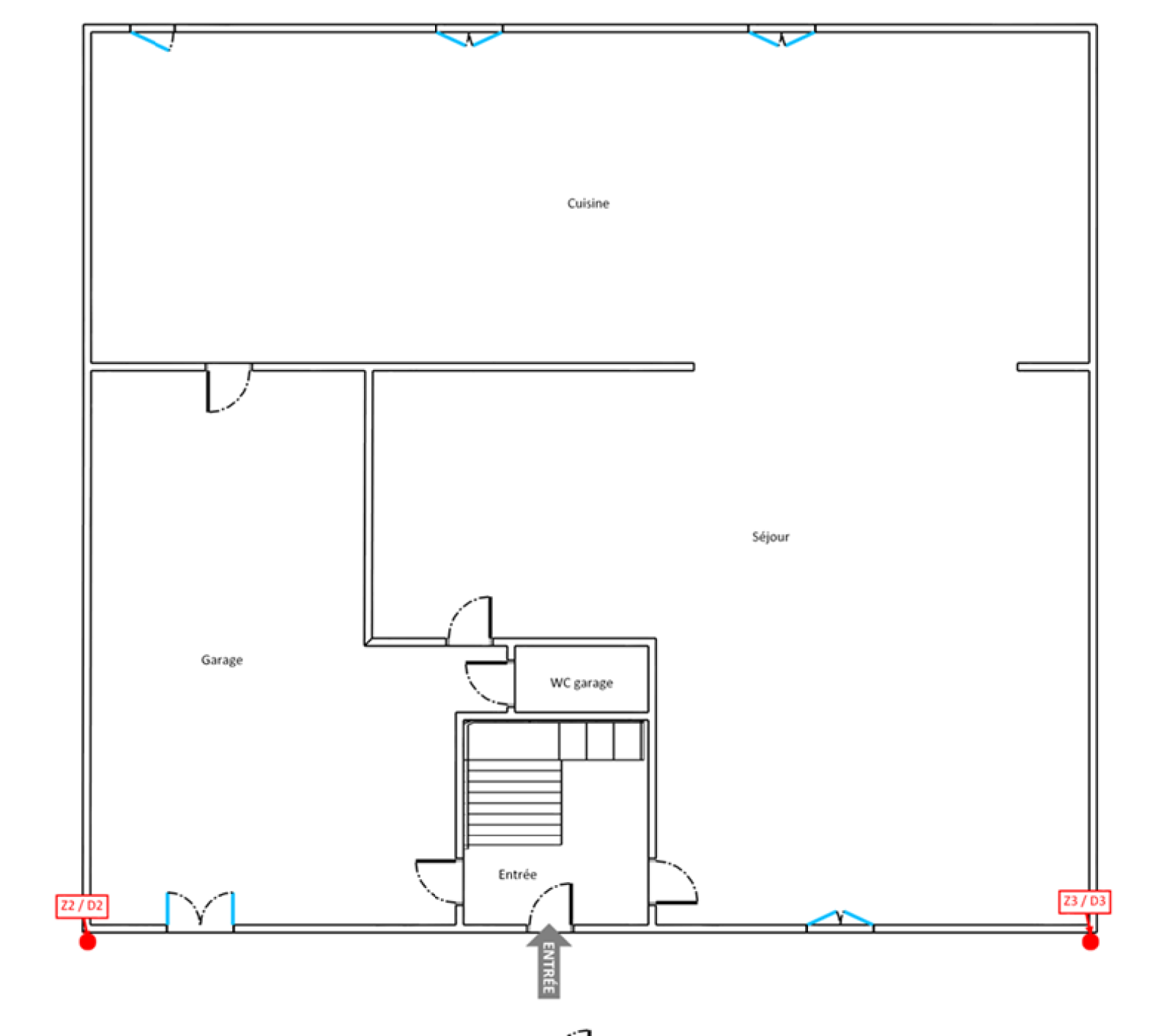
Composition de la maison :

Au rez de chaussée, une entrée de 3 m².

Une grande pièce de vie de 72 m² en forme de L avec un coin salon séjour et un coin cuisine salle à manger donnant sur le jardin et la terrasse.

La cuisine est équipée de meubles bas et hauts, d’un four et d’un piano de cuisson 5 feux à gaz.

Un wc séparé.

Un garage de 26 m² avec un espace buanderie.


Au 1er niveau :

Un dégagement de 7 m² desservant les 4 chambres et la salle de bain.

Une chambre de 11 m².

Une chambre de 13.5 m² avec placards.

Une chambre de 13.5 m².

Une chambre de 14 m² avec placards.

Une salle de bain de 4.5 m² avec une baignoire, un meuble vasque et un wc.


Au 2ème niveau :

Une chambre parentale de 50 m² mansardée dont 14 m² en carrez avec salle d’eau (meuble vasque, douche et wc) et des rangements.


Côté extérieur :

Un jardin plat et clôturé de 300 m².

Un abri de jardin.


Côté prestations :

Menuiserie en double vitrage.

Volets roulants électrique et manuel.

Chauffage avec chaudière à gaz.

Poêle à bois.

Aspiration centralisée.

Parquet bois massif.


Informations pratiques :

Classement énergétique en D.

Taxe foncière 2451€


Pour plus de renseignements veuillez contacter l’agence Benoit lannes immobilier.

.








Caractéristiques de ce bien

  • Surface 156,50 m²
  • carrez 156,50 m²
  • terrain 451 m²
  • séjour 36 m²
  • 5 chambre(s)
  • 1 salle(s) de bain
  • 1 salle(s) d'eau
  • construit en 1930
  • cuisine américaine (semi-équipée)
  • Chauffage individuel : chaudière (gaz de ville)
  • Chauffage individuel : poêle (bois)
  • 1 garage(s)
  • exposition Est-Ouest
  • 2 niveau(x)

Diagnostics énergétiques

DPE
GES

Montant estimé des dépenses annuelles d'énergie pour un usage standard est compris entre 2 490 € et 3 340 € . Prix moyens des énergies indexés sur les années 2021, 2022 et 2023 (abonnements compris).

Informations financières

Prix de vente 599 000 € Les honoraires d'agence seront intégralement à la charge du vendeur
Taxe foncière annuelle 2 451 €

Autour du bien

  • Commerces et santé
  • Loisirs
  • Ecoles
  • Transports
  • Pratique

Calcul des mensualités

* Champs obligatoires