Benoît Lannes Immobilier Agence
Vendu

Immeuble 200 m² 1 etage(s) TRAD_ALIZE_OPTIONS_TRAD_ALIZE_OPTIONS_LABEL_etage

Toulouse (31300)
571 000 € Référence 462

A propos de ce bien

Ensemble de 2 maisons avec locatif meublé et nu, idéal investisseur !

Situé dans le quartier de Purpan Lardenne, proche de l’école vétérinaire, nous vous proposons cet ensemble immobilier composé de:

-une maison de 6 chambres meublées actuellement louées

-une autre maison rénovée avec sa piscine libre de toute occupation

Revenu de 42960€ annuel soit 7% de rentabilité brute.

Ce lot de 2 maisons est sur une parcelle de 1124 m² et il est divisible. Chaque maison dispose d’une entrée indépendante et de places de parking.

 

La première maison de type T7 est louée à des étudiantes de l’école vétérinaire.

Elle mesure 127 m² et elle se compose de 6 chambres louées en meublé générant un revenu mensuel de 2380€/mois dont 240 € de charges.

La deuxième maison de type T3 bis mesure 73 m². Elle a été rénovée, elle se compose de 2 grandes chambres et d’un bureau, une grande pièce de vie avec un jardin et une piscine.

Elle dispose de la climatisation.

L’accès à la piscine est réservé uniquement à cette maison mais peut être ouvert à l’autre.

Cette maison est libre de toute occupation et se loue 1200€/mois.

Vous avez aussi la possibilité de créer 2 chambres supplémentaires dans les combles pour faire 4 chambres meublées et augmenter le revenu.

 

Composition de la maison 1 :

Au rez de chaussée :

Une entrée donnant sur le séjour commun 32 m² et la cuisine.

Une chambre de 16 m² avec salle d’eau et wc louée 440€/mois.

Une chambre de 18 m² avec salle d’eau et wc louée 440€/mois.

Une buanderie de 2 m² commune.

 

A l’étage :

Une chambre de 11 m² louée 400€/mois avec terrasse.

Une chambre de 11 m² louée 380€/mois

Une chambre de 9 m² louée 380€/mois.

Une chambre de 8.5 m² louée 340€/mois.

Une salle de bain commune de 3.3 m².

Un wc commun.

 

Côté extérieur :

Un jardin privatif commun et clôturé.

Des places de parking.

 

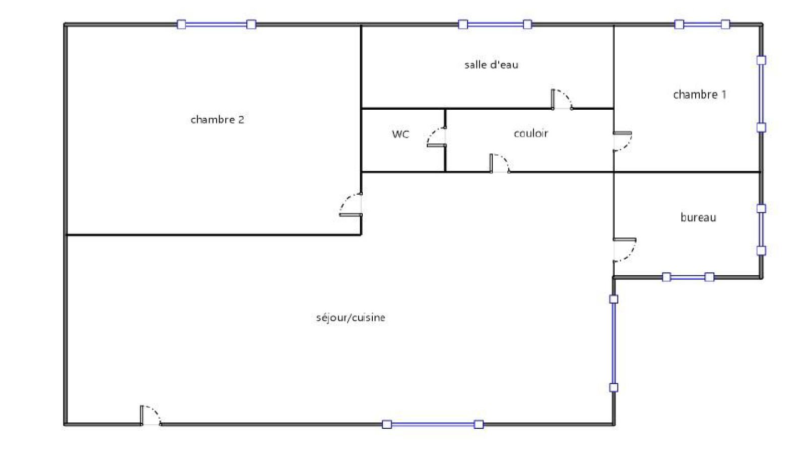
Composition de la maison 2

Une entrée donnant sur une pièce de vie de 38.5m² avec sa cuisine équipée

Une chambre avec placard de 14 m².

Une chambre de 12 m²

Un bureau de 7 m².

Une salle d’eau de 8 m² avec douche et meuble vasque.

Un wc indépendant.

 

Informations pratiques :

Taxe foncière 2500€/an

Classement énergétique des 2 bâtiments en D

Chauffage électrique pour la maison 1

Chauffage électrique et climatisation pour la maison 2

Ecole vétérinaire à proximité.

Ligne de bus lineo L2 la 46 et 63.

 

Pour plus de renseignement veuillez contacter l’agence Benoît Lannes Immobilier.

 

Caractéristiques de ce bien

  • Surface 200 m²
  • carrez 200 m²
  • 8 parking(s)
  • 1 niveau(x)
  • 1 étage(s)
  • balcon
  • terrasse
  • quartier Lardenne, Purpan

Diagnostics énergétiques

DPE
GES

Montant estimé des dépenses annuelles d'énergie pour un usage standard est compris entre 3 200 € et 4 390 € . Prix moyens des énergies indexés sur les années 2021, 2022 et 2023 (abonnements compris).

Informations financières

Prix de vente 571 000 € Les honoraires d'agence seront intégralement à la charge du vendeur
Taxe foncière annuelle 2 500 €

Autour du bien

  • Commerces et santé
  • Loisirs
  • Ecoles
  • Transports
  • Pratique

Calcul des mensualités

* Champs obligatoires