Benoît Lannes Immobilier Agence
Télécharger la fiche
Exclusivité Nouveauté

Appartement 2 pièce(s) 1 chambre(s) 42 m²

Toulouse (31300)
167 900 € Référence 510

A propos de ce bien

T2 de 42 m² avec terrasse et Parking Cartoucherie Zénith.

Situé dans le quartier de la Cartoucherie Zenith, au 4 rue Anne Farnck, nous vous proposons ce T2 de 42 m² avec terrasse couverte et une place de parking au 2 -ème étage dans un immeuble de 2015.

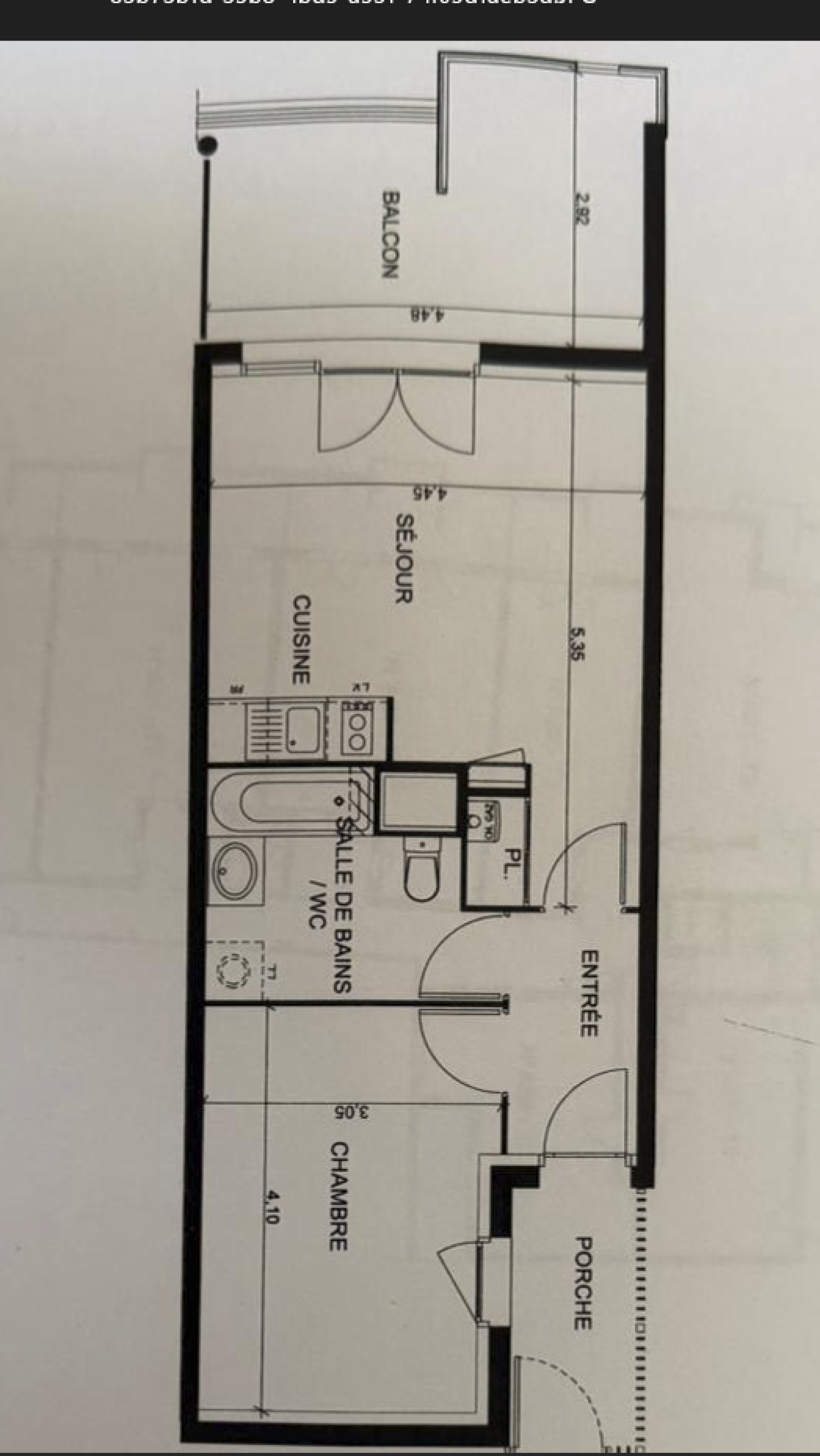
Il se compose d'un porche, d’une entrée, une pièce de vie avec le salon et la cuisine donnant sur la terrasse, une chambre, une salle de bain avec toilette.

Vous serez séduit par sa terrasse, sa luminosité et son calme.

Vous êtes à quelques minutes à pied du tramway T1, L2 et L3, station métro Arènes Ligne A et des commerces de proximités.

Pas de travaux à prévoir dans l’appartement et dans la copropriété.


Ideal pour un premier achat ou bien un investissement locatif.


Composition de l’appartement :

Un porche de 3 m².

Une entrée de 3 m².

Une pièce de vie de 19 m² avec cuisine et espace salon. La cuisine est équipée de meubles bas et hauts, de plaque de cuisson, hotte aspirante et d’un frigo.

Une chambre de 12 m².

Une salle de bain de 6 m² avec baignoire, un meuble vasque, un coin buanderie et un wc.

Une terrasse couverte de 12 m².

Une place de parking en sous-sol sécurisée.


Prestations et équipements :

Menuiserie double vitrage avec volet roulant

Carrelage au sol.

Chauffage avec chaudière gaz à condensation.

Garage à vélo.

Faible consommation énergétique.


Informations :

DPE en C avec une consommation de 40€/mois.

Taxe foncière 1040€.


Charge de copro 82€/mois eau comprise.

Tramway T1, Ligne de bus L2 L3.

Metro ligne A Sation Arènes.


Pour plus d’informations, veuillez contacter l’agence Benoît Lannes Immobilier


Caractéristiques de ce bien

  • Surface 42 m²
  • carrez 42 m²
  • séjour 19 m²
  • 1 chambre(s)
  • 1 salle(s) de bain
  • construit en 2013
  • cuisine américaine (semi-équipée)
  • Chauffage individuel : chaudière (gaz de ville)
  • exposition Sud
  • 2ème étage
  • 4 étage(s)
  • ascenseur
  • terrasse
  • visiophone
  • interphone
  • quartier Cartoucherie, Casselardit
  • accès handicapé

Diagnostics énergétiques

DPE
GES

Montant estimé des dépenses annuelles d'énergie de ce logement pour un usage standard est compris entre 419 € et 567 € . 2023 étant l'année de référence des prix de l'énergie utilisés pour établir cette estimation.

Informations financières

Prix de vente 167 900 € Les honoraires d'agence seront intégralement à la charge du vendeur
Charges 82 €
Taxe foncière annuelle 1 040 €

Informations de copropriété

Copropriété Oui
Quote part annuelle des charges 986 €
Plan de sauvegarde Non

Autour du bien

  • Commerces et santé
  • Loisirs
  • Ecoles
  • Transports
  • Pratique

Calcul des mensualités

* Champs obligatoires