Yacine MAZZOUJ Négociateur
Télécharger la fiche
Coup de coeur

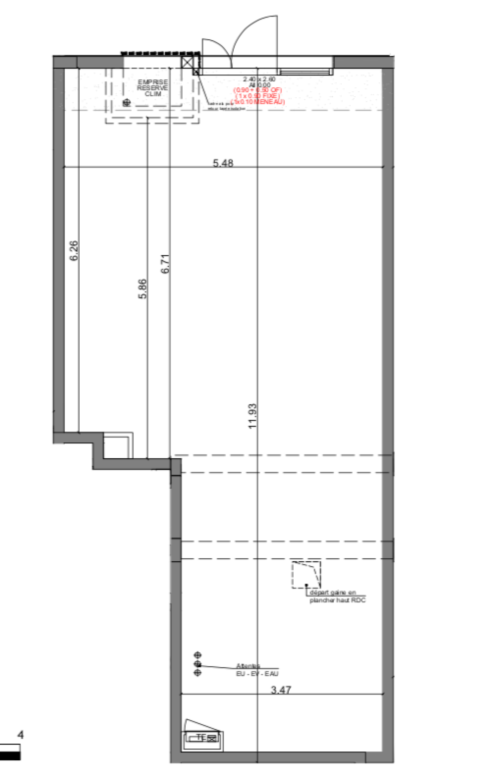
Local commercial 98 m²

Lespinasse (31150)
246 708 € TTC* * TTC : Toutes Taxes Comprises Référence 526

A propos de ce bien

Votre futur commerce idéalement situé le long de la route de Paris, dans un ensemble commercial, sur la commune de LESPINASSE (31150) - Programme neuf avec stationnements et espaces verts.

L’agence Benoit Lannes Immobilier vous présente en exclusivité ce local commercial de 98m² au sein d’une nouvelle résidence regroupant logements, commerces, services et espaces communs de qualité.

Belle visibilité (sortie de rond-point) et ouvert sur la ville, il a été pensé pour offrir un cadre fonctionnel et moderne : ce programme répond parfaitement aux attentes des professionnels souhaitant s’installer dans un environnement de qualité, aux normes PMR.

Idéal pour toute activité commerciale ou de service. (Autres surfaces disponibles : 100, 110 et 150m²).

Livraison : 3ème trimestre 2026


Pour plus de renseignements : yacine.blimmo.pro@gmail.com / 06.31.24.58.36

Caractéristiques de ce bien

Activités

  • Type de transaction Local commercial

Agencement

  • Superficie m2 98 m²

Secteur

  • Code postal 31150
  • Ville Lespinasse

Diagnostics & compléments

  • Année de construction 2025

Diagnostics énergétiques

DPE
GES
DPE non concerné

Informations financières

Prix de vente TTC honoraires inclus 246 708 €
Les honoraires d'agence seront intégralement à la charge du vendeur  

Autour du bien

  • Commerces et santé
  • Loisirs
  • Ecoles
  • Transports
  • Pratique

Calcul des mensualités

* Champs obligatoires