06 31 63 48 51
Siège social89 Chemin de la Salade Ponsan - 31400 Toulouse
30 Rue Marie Magné - 31300 Toulouse

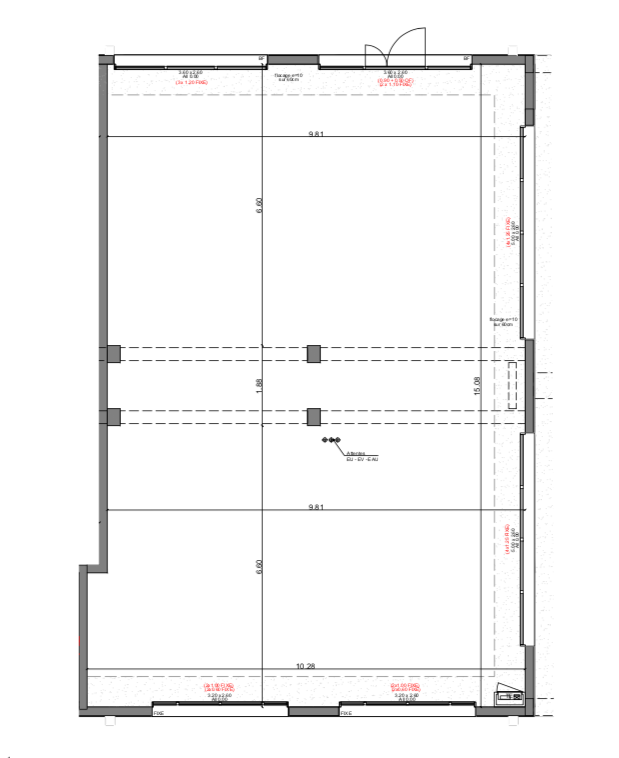
Murs commerciaux Restaurant 150m² - Lespinasse (31150)


< Retour

Partager sur

gallery loader
Nouveauté

Murs commerciaux 150 m² - Lespinasse 375 908 €


Description de l'offre Ref 526B


Votre futur restaurant idéalement situé dans un ensemble commercial, sur la commune de LESPINASSE (31150) - Programme neuf avec stationnements et espaces verts. L’agence Benoit Lannes Immobilier vous présente en exclusivité ce local commercial neuf au sein d’une nouvelle résidence regroupant logements, commerces, services et espaces communs de qualité. Emplacement stratégique en angle d'immeuble et entrée de rond-point, donnant directement sur la route de Paris, offrant ainsi une excellente visibilité et un flux important de passage. Ouvert sur la ville, il a été pensé pour offrir un cadre fonctionnel et moderne : ce programme répond parfaitement aux attentes des professionnels souhaitant s’installer dans un environnement de qualité, aux normes PMR. Idéal pour installation d'une activité de restaurant ou métier de bouche !!! Pour tout renseignement : yacine.blimmo.pro@gmail.com Vous êtes investisseurs? Découvrez nos autres locaux commerciaux disponibles (6 locaux de 50 à 205 m² ) !

Descriptif du bien


Type de transac Murs commerciaux


Code postal 31150


Surface habitable (m²) 150 m²


Superficie (m²) 150


Année de construction 2026


Copropriété NON


Prix de vente TTC honoraires inclus 375 908 €


Les honoraires d'agence seront intégralement à la charge du vendeur  


Cette annonce vous intéresse ?


* Champs obligatoires

* : Les informations recueillies sur ce formulaire sont enregistrées dans un fichier informatisé par La Boite Immo agissant comme Sous-traitant du traitement pour la gestion de la clientèle/prospects de l'Agence / du Réseau qui reste Responsable du Traitement de vos Données personnelles. La base légale du traitement repose sur l'intérêt légitime de l'Agence / du Réseau. Elles sont conservées jusqu'à demande de suppression et sont destinées à l'Agence / au Réseau. Conformément à la loi « informatique et libertés », vous disposez des droits d’accès, de rectification, d’effacement, d’opposition, de limitation et de portabilité de vos données. Vous pouvez retirer votre consentement à tout moment en contactant directement l’Agence / Le Réseau. Consultez le site https://cnil.fr/fr pour plus d’informations sur vos droits. Si vous estimez, après avoir contacté l'Agence / le Réseau, que vos droits « Informatique et Libertés » ne sont pas respectés, vous pouvez adresser une réclamation à la CNIL. Nous vous informons de l’existence de la liste d'opposition au démarchage téléphonique « Bloctel », sur laquelle vous pouvez vous inscrire ici : https://www.bloctel.gouv.fr Dans le cadre de la protection des Données personnelles, nous vous invitons à ne pas inscrire de Données sensibles dans le champ de saisie libre.
Ce site est protégé par reCAPTCHA, les Politiques de Confidentialité et les Conditions d'Utilisation de Google s'appliquent.