06 31 63 48 51
Siège social89 Chemin de la Salade Ponsan - 31400 Toulouse
30 Rue Marie Magné - 31300 Toulouse

Duplex aux Carmes face à la Garonne.


< Retour

Partager sur

gallery loader
Exclusivité Coup de coeur

Duplex 184 m² - 6 Pièces - Toulouse 1 050 000


Description de l'offre Ref 521


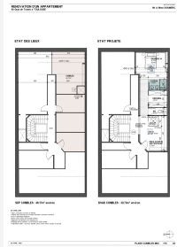
Duplex aux Carmes face à la Garonne. Vue exceptionnelle !!! sur les quais de la Garonne, la Prairie des Filtres ainsi que de l’autre côté sur L’église de la Dalbade. Situé dans le quartier des Carmes, sur les quais de Tounis face à la Garonne, nous vous proposons cet appartement T6 en duplex au 3 eme et dernier étage avec ascenseur de 184 m² au sol (149 m² carrez) entièrement rénové avec balcon (vue Garonne) et une place de parking. Vous apprécierez son calme et sa luminosité (traversant) avec sa double exposition (Est Ouest). La qualité de la rénovation réalisée par un architecte. Son emplacement dans le quartier des Carmes, proche des commerces et restaurants, du métro et Tramway. Il se compose au rdc d’une entrée donnant sur un séjour, une salle à manger avec la cuisine ouverte. De 3 grandes chambres, d’une salle d’eau, un wc et une buanderie. A l’étage un bureau et une suite parentale avec salle d’eau, dressing et wc séparé. Vous disposez aussi d’une salle de sport séparée, une chambre de bonne à aménager et un grenier. Vous êtes au 3 -ème et dernier étage d’une petite copropriété de 5 appartements. Descriptif de l’appartement : Au rez de chaussé, une entrée de 3 m² donnant sur la pièce de vie de 53 m². La pièce de vie se compose d’un salon et séjour de 43 m², très lumineux avec un balcon filaire donnant sur la Garonne. Parquet à la Hongroise, cheminées en marbre, grandes ouvertures en double vitrage et cellier attenant… Une cuisine de 10 m²ouverte sur La salle à manger entièrement équipée avec plan de travail en granit du Zimbabwe. Son électroménager se compose d’un frigo SMEG, cuisinière à gaz SMEG avec hotte aspirant intégrée au plafond, lave-vaisselle et four. Le sol est en béton ciré. Une chambre de 19 m² avec placards intégrés, parquet massif (côté église Dalbade). Une chambre de 14 m² avec béton ciré au sol (côté église Dalbade). Une chambre de 17 m² avec placards intégrés et dressing et parquet massif. Une salle d’eau de 5 m² avec um meuble double vasque et une douche à l’italienne avec carrelage toute hauteur. Une buanderie de 3 m² accueillant le lave-linge et sèche-linge. Un wc séparé de 2 m². A l’étage on monte par un escalier en colimaçon donnant sur : Une pièce climatisée de 13 m² utilisée en espace détente et de bureau. Possibilité d’agrandir de 14 m² en ouvrant la cloison sur la chambre de bonne attenante. Une chambre parentale de 23 m² mansardée avec un double dressing, une salle d’eau avec douche à l’italienne, meuble double vasque et un wc séparé. La chambre est climatisée. Vous disposez de 3 pièces supplémentaires pouvant se rattacher au reste de l’appartement. Une salle de sport de 10 m². Une chambre de bonne mansardée de 14 m². Un grenier de 16 m² pour du stockage. Prestations et équipements : Rénovation avec très belles prestations par architecte. Parquet massif bois à la Hongroise Menuiserie récente en double vitrage. Cheminée décorative en marbre. Cuisine entièrement équipée avec plan de travail en granit du Zimbabwe. Dressings ou placards aménagées dans toutes les chambres. Ascenseur. Place de parking fermée dans la résidence. Cave individuelle. Informations pratiques : Faible consommation énergétique DPE en C avec 120€/mois de gaz et électricité. Charge de copropriété 322€/mois. Taxe foncière 2471€/an. Pas de travaux à prévoir au sein de la copropriété. Ecole primaire Fabre et Calentreta. Collège de Lamartine. Collège privé Saint Thomas D’Aquin Commerces et restaurants dans le quartier des Carmes Metro Ligne B station Palais de Justice et Tramway. Confrères et consœurs ouvert à l’inter agence. Pour plus de renseignement veuillez contacter l’agence

Diagnostics de performance énergétique


DPE
DPE

Montant estimé des dépenses annuelles d'énergie pour un usage standard est compris entre 1 100 € et 1 570 € . Prix moyens des énergies indexés sur les années 2021, 2022 et 2023 (abonnements compris).

Descriptif du bien


Code postal 31000


Surface habitable (m²) 184 m²


Surface loi Carrez (m²) 149 m²


Nombre de chambre(s) 4


Nombre de pièces 6


Etage 3


Nombre de niveaux 1


Ascenseur OUI


Vue Garonne et Prairie des Filtres


Nb de salle d'eau 2


Cuisine AMERICAINE


Type de cuisine EQUIPEE


Mode de chauffage Gaz de ville, Gaz de ville


Type de chauffage TRAD_TYPE_CHAUFF_CHAUDIERE, Air pulsé


Format de chauffage Individuel, Individuel


Interphone OUI


Balcon OUI


Cave OUI


Exposition EST-OUEST


Année de construction 1850


Quartier Carmes


Copropriété OUI


nombre de lots 18


Quote Part annuelle des charges 3 858 €


plan de sauvegarde NON


Prix de vente 1 050 000 €


Les honoraires d'agence seront intégralement à la charge du vendeur  


Charges 322 €


Taxe foncière annuelle 2 471 €


Cette annonce vous intéresse ?


* Champs obligatoires

* : Les informations recueillies sur ce formulaire sont enregistrées dans un fichier informatisé par La Boite Immo agissant comme Sous-traitant du traitement pour la gestion de la clientèle/prospects de l'Agence / du Réseau qui reste Responsable du Traitement de vos Données personnelles. La base légale du traitement repose sur l'intérêt légitime de l'Agence / du Réseau. Elles sont conservées jusqu'à demande de suppression et sont destinées à l'Agence / au Réseau. Conformément à la loi « informatique et libertés », vous disposez des droits d’accès, de rectification, d’effacement, d’opposition, de limitation et de portabilité de vos données. Vous pouvez retirer votre consentement à tout moment en contactant directement l’Agence / Le Réseau. Consultez le site https://cnil.fr/fr pour plus d’informations sur vos droits. Si vous estimez, après avoir contacté l'Agence / le Réseau, que vos droits « Informatique et Libertés » ne sont pas respectés, vous pouvez adresser une réclamation à la CNIL. Nous vous informons de l’existence de la liste d'opposition au démarchage téléphonique « Bloctel », sur laquelle vous pouvez vous inscrire ici : https://www.bloctel.gouv.fr Dans le cadre de la protection des Données personnelles, nous vous invitons à ne pas inscrire de Données sensibles dans le champ de saisie libre.
Ce site est protégé par reCAPTCHA, les Politiques de Confidentialité et les Conditions d'Utilisation de Google s'appliquent.