06 31 63 48 51
Siège social89 Chemin de la Salade Ponsan - 31400 Toulouse
30 Rue Marie Magné - 31300 Toulouse

Appartement 110 m² à rénover au centre ville.


< Retour

Partager sur

gallery loader

Appartement 110 m² - 3 Pièces - Gaillac 159 000


Description de l'offre Ref 505


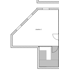
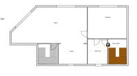
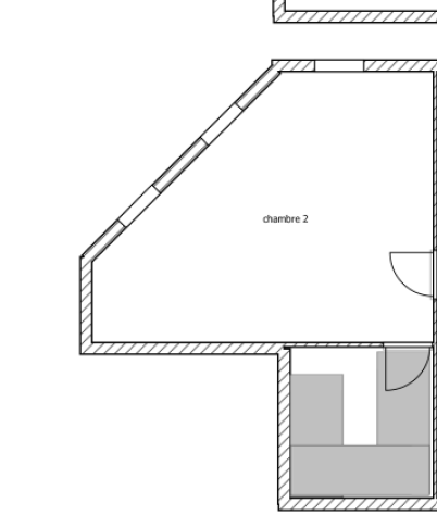
Appartement 110 m² à rénover au centre ville. Situé au centre-ville de Gaillac, place de la Libération, nous vous proposons cet ensemble immobilier de 110 m² à rénover pouvant se diviser en 2 appartements. Il se situe au 1 er et 2 -ème étage d’une petite copropriété. Il se compose au 1 er étage d’un séjour, une cuisine, une grande chambre pouvant se diviser en 2, une salle de bain. Au 2 -ème une pièce pouvant se transformer en studio ou faire une chambre supplémentaire. Vous avez les commerces sur la place et les écoles à proximité.   Idéal pour faire un investissement locatif ou bien sa résidence principale. La façade à été refaite, des travaux sont à prévoir dans l’appartement ainsi que la cage d’escalier (menuiserie, chauffage, peinture…)     Composition de l’ensemble : Au 1 er un salon de 32 m²  avec vue sur la place. Une cuisine ouverte de 9.5 m². Une pièce de 34 m² pouvant se diviser en 2 chambres. Une salle de bain avec wc de 9.4 m².   Au 2 eme une pièce de 25 m² pouvant servir de chambre ou bien se transformer en studio.   Informations pratiques : Charge de copro 30€/mois environ. DPE vierge car pas de système de chauffage.   Pour plus de renseignement veuillez contacter l’agence Benoît Lannes Immobilier.  

Diagnostics de performance énergétique


DPE
DPE
DPE vierge

Descriptif du bien


Code postal 81600


Surface habitable (m²) 110 m²


Surface loi Carrez (m²) 110 m²


Nombre de chambre(s) 2


Nombre de pièces 3


Etage 1


Nombre de niveaux 1


Ascenseur NON


Nb de salle de bains 1


Cuisine SANS


Balcon NON


Terrasse NON


Cave NON


Exposition EST


Année de construction 1949


Copropriété OUI


Quote Part annuelle des charges 360 €


Prix de vente 159 000 €


Les honoraires d'agence seront intégralement à la charge du vendeur  


Cette annonce vous intéresse ?


* Champs obligatoires

* : Les informations recueillies sur ce formulaire sont enregistrées dans un fichier informatisé par La Boite Immo agissant comme Sous-traitant du traitement pour la gestion de la clientèle/prospects de l'Agence / du Réseau qui reste Responsable du Traitement de vos Données personnelles. La base légale du traitement repose sur l'intérêt légitime de l'Agence / du Réseau. Elles sont conservées jusqu'à demande de suppression et sont destinées à l'Agence / au Réseau. Conformément à la loi « informatique et libertés », vous disposez des droits d’accès, de rectification, d’effacement, d’opposition, de limitation et de portabilité de vos données. Vous pouvez retirer votre consentement à tout moment en contactant directement l’Agence / Le Réseau. Consultez le site https://cnil.fr/fr pour plus d’informations sur vos droits. Si vous estimez, après avoir contacté l'Agence / le Réseau, que vos droits « Informatique et Libertés » ne sont pas respectés, vous pouvez adresser une réclamation à la CNIL. Nous vous informons de l’existence de la liste d'opposition au démarchage téléphonique « Bloctel », sur laquelle vous pouvez vous inscrire ici : https://www.bloctel.gouv.fr Dans le cadre de la protection des Données personnelles, nous vous invitons à ne pas inscrire de Données sensibles dans le champ de saisie libre.
Ce site est protégé par reCAPTCHA, les Politiques de Confidentialité et les Conditions d'Utilisation de Google s'appliquent.