06 31 63 48 51
Siège social89 Chemin de la Salade Ponsan - 31400 Toulouse
30 Rue Marie Magné - 31300 Toulouse

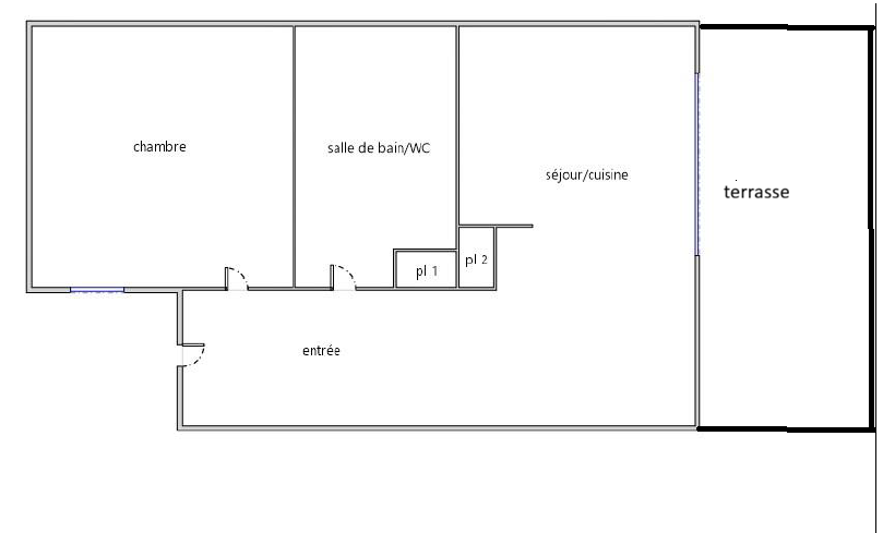
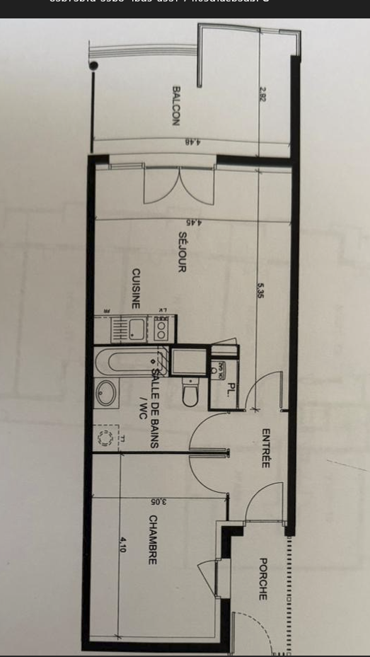
T2 de 41 m² avec terrasse et Parking Cartoucherie Zénith.


< Retour

Partager sur

gallery loader
Exclusivité Nouveauté

Appartement 41 m² - 2 Pièces - Toulouse 178 800


Description de l'offre Ref 510


T2 de 41 m² avec terrasse et Parking Cartoucherie Zénith. Situé dans le quartier de la Cartoucherie Zenith, au 4 rue Anne Farnck, nous vous proposons ce T2 de 41 m² avec terrasse couverte et une place de parking au 2 -ème étage dans un immeuble de 2015. Il se compose d'un porche, d’une entrée, une pièce de vie avec le salon et la cuisine donnant sur la terrasse, une chambre, une salle de bain avec toilette. Vous serez séduit par sa terrasse, sa luminosité et son calme. Vous êtes à quelques minutes à pied du tramway T1, L2 et L3, station métro Arènes Ligne A et des commerces de proximités. Pas de travaux à prévoir dans l’appartement et dans la copropriété. Ideal pour un premier achat ou bien un investissement locatif. Composition de l’appartement : Un porche de 3 m². Une entrée de 3 m². Une pièce de vie de 19 m² avec cuisine et espace salon. La cuisine est équipée de meubles bas et hauts, de plaque de cuisson, hotte aspirante et d’un frigo. Une chambre de 12 m². Une salle de bain de 6 m² avec baignoire, un meuble vasque, un coin buanderie et un wc. Une terrasse couverte de 12 m². Une place de parking en sous-sol sécurisée. Prestations et équipements : Menuiserie double vitrage avec volet roulant Carrelage au sol. Chauffage avec chaudière gaz à condensation. Garage à vélo. Faible consommation énergétique. Informations : DPE en C avec une consommation de 40€/mois. Taxe foncière 1040€. Charge de copro 82€/mois eau comprise. Tramway T1, Ligne de bus L2 L3. Metro ligne A Sation Arènes. Pour plus d’informations, veuillez contacter l’agence Benoît Lannes Immobilier

Diagnostics de performance énergétique


DPE
DPE

Montant estimé des dépenses annuelles d'énergie de ce logement pour un usage standard est compris entre 419 € et 567 € . 2023 étant l'année de référence des prix de l'énergie utilisés pour établir cette estimation.

Descriptif du bien


Code postal 31300


Surface habitable (m²) 41 m²


Surface loi Carrez (m²) 41 m²


Nombre de chambre(s) 1


Nombre de pièces 2


Etage 2


Ascenseur OUI


Nb de salle de bains 1


Cuisine AMERICAINE


Type de cuisine SEMI-EQUIPEE


Mode de chauffage Gaz de ville


Type de chauffage TRAD_TYPE_CHAUFF_CHAUDIERE


Format de chauffage Individuel


Interphone OUI


Visiophone OUI


Terrasse OUI


Cave NON


Exposition SUD


Année de construction 2013


Quartier Cartoucherie, Casselardit


Copropriété OUI


Quote Part annuelle des charges 986 €


plan de sauvegarde NON


Prix de vente 178 800 €


Les honoraires d'agence seront intégralement à la charge du vendeur  


Charges 82 €


Taxe foncière annuelle 1 040 €


Cette annonce vous intéresse ?


* Champs obligatoires

* : Les informations recueillies sur ce formulaire sont enregistrées dans un fichier informatisé par La Boite Immo agissant comme Sous-traitant du traitement pour la gestion de la clientèle/prospects de l'Agence / du Réseau qui reste Responsable du Traitement de vos Données personnelles. La base légale du traitement repose sur l'intérêt légitime de l'Agence / du Réseau. Elles sont conservées jusqu'à demande de suppression et sont destinées à l'Agence / au Réseau. Conformément à la loi « informatique et libertés », vous disposez des droits d’accès, de rectification, d’effacement, d’opposition, de limitation et de portabilité de vos données. Vous pouvez retirer votre consentement à tout moment en contactant directement l’Agence / Le Réseau. Consultez le site https://cnil.fr/fr pour plus d’informations sur vos droits. Si vous estimez, après avoir contacté l'Agence / le Réseau, que vos droits « Informatique et Libertés » ne sont pas respectés, vous pouvez adresser une réclamation à la CNIL. Nous vous informons de l’existence de la liste d'opposition au démarchage téléphonique « Bloctel », sur laquelle vous pouvez vous inscrire ici : https://www.bloctel.gouv.fr Dans le cadre de la protection des Données personnelles, nous vous invitons à ne pas inscrire de Données sensibles dans le champ de saisie libre.
Ce site est protégé par reCAPTCHA, les Politiques de Confidentialité et les Conditions d'Utilisation de Google s'appliquent.