06 31 63 48 51
Siège social89 Chemin de la Salade Ponsan - 31400 Toulouse
30 Rue Marie Magné - 31300 Toulouse

Murs commerciaux 90m2 - Local commercial Gde rue St Michel


< Retour

Partager sur

gallery loader
Prix en baisse

Murs commerciaux 90 m² - Toulouse 298 940 €


Description de l'offre Ref 504


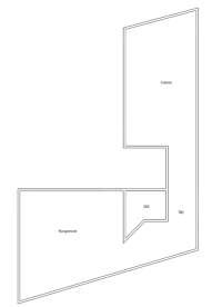
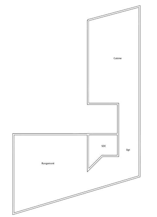
Palais de Justice - Grande rue St Michel, 31400 Toulouse. L'Agence Benoit Lannes Immo Pro vous propose ce local commercial de 90m2 environ libre de toute occupation. Anciennement occupé par un restaurant-cave à manger, il se compose d'une pièce principale de 40m2 avec une terrasse ombragée de 22m2 située à l'arrière. Au sous-sol, une grande cuisine et une pièce à usage de stockage pour une surface totale de 50m2 viennent compléter le bien. Emplacement stratégique : situé côté Palais de justice où l'activité commerciale y est la plus dense, ce local se prête à toutes activités. Quartier vivant et dynamique à fort passage piéton et routier. Idéal pour Commerce ou Bureaux avec une belle visibilité. Prix net vendeur: 275.000€. Honoraires en sus charge acquéreur: 19.950€ HT Bonne rentabilité pour un investisseur (dernier loyer connu : 2.000€/mois)

Descriptif du bien


Type de transac Murs commerciaux


Code postal 31400


Surface habitable (m²) 90 m²


Nombre de niveaux 2


Superficie (m²) 90


Mode de chauffage Climatisation


Type de chauffage Convecteur


Format de chauffage Individuel


Année de construction 1990


Quartier Busca, Carmes, Palais de Justice , Saint Michel


Copropriété NON


Prix de vente honoraires inclus 298 940 €


Bail Tous commerces


Loyer 2 000 €


Cette annonce vous intéresse ?


* Champs obligatoires

* : Les informations recueillies sur ce formulaire sont enregistrées dans un fichier informatisé par La Boite Immo agissant comme Sous-traitant du traitement pour la gestion de la clientèle/prospects de l'Agence / du Réseau qui reste Responsable du Traitement de vos Données personnelles. La base légale du traitement repose sur l'intérêt légitime de l'Agence / du Réseau. Elles sont conservées jusqu'à demande de suppression et sont destinées à l'Agence / au Réseau. Conformément à la loi « informatique et libertés », vous disposez des droits d’accès, de rectification, d’effacement, d’opposition, de limitation et de portabilité de vos données. Vous pouvez retirer votre consentement à tout moment en contactant directement l’Agence / Le Réseau. Consultez le site https://cnil.fr/fr pour plus d’informations sur vos droits. Si vous estimez, après avoir contacté l'Agence / le Réseau, que vos droits « Informatique et Libertés » ne sont pas respectés, vous pouvez adresser une réclamation à la CNIL. Nous vous informons de l’existence de la liste d'opposition au démarchage téléphonique « Bloctel », sur laquelle vous pouvez vous inscrire ici : https://www.bloctel.gouv.fr Dans le cadre de la protection des Données personnelles, nous vous invitons à ne pas inscrire de Données sensibles dans le champ de saisie libre.
Ce site est protégé par reCAPTCHA, les Politiques de Confidentialité et les Conditions d'Utilisation de Google s'appliquent.