06 31 63 48 51
Siège social89 Chemin de la Salade Ponsan - 31400 Toulouse
30 Rue Marie Magné - 31300 Toulouse

Maison T6 de 156 m² avec jardin au cœur des Sept Deniers.


< Retour

Partager sur

gallery loader
Exclusivité Coup de coeur

Maison 156.5 m² - 6 Pièces - Toulouse 649 000


Description de l'offre Ref 494


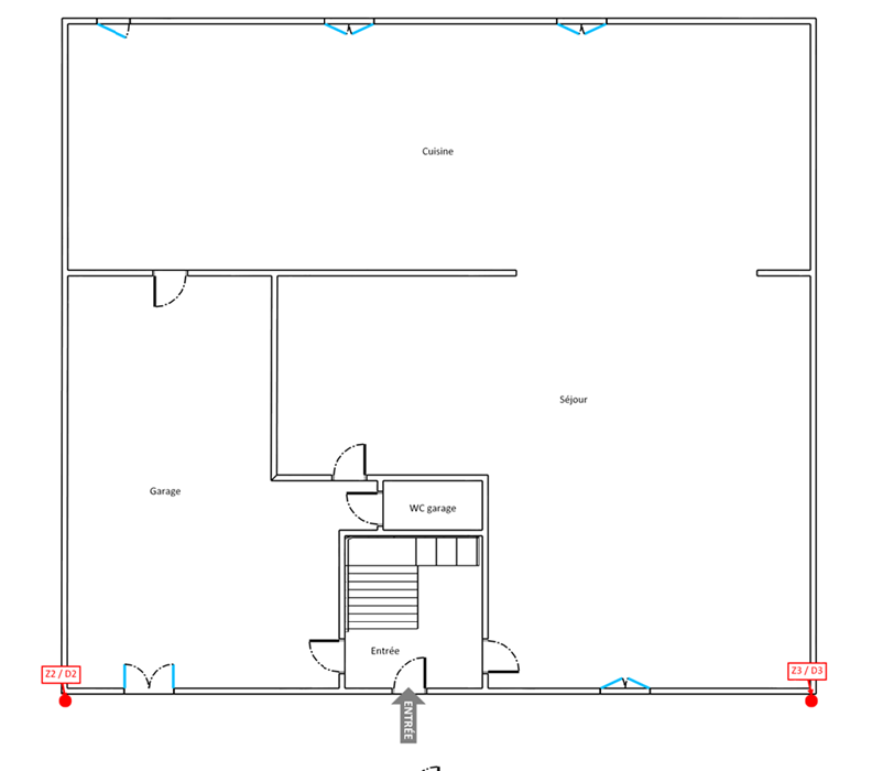
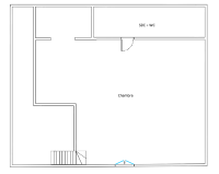
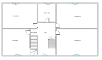
Maison T6 de 156 m² avec jardin au cœur des Sept Deniers. Nous proposons au cœur des Sept Deniers dans une rue calme, cette maison des années 30 de type T6 de 156 m² avec son jardin piscinable sur une parcelle de 451 m² et avec un grand garage. Elle se compose d’une grande pièce de vie en L avec salon/ séjour et sa cuisine donnant sur un jardin clôturé à l’arrière, de 5 chambres dont une suite parentale avec salle d’eau, une salle de bain, 3 wc, un garage et un abri de jardin. Vous serez séduit par son charme des années 30 avec parquet bois massif, carreaux de ciment ancien, sa luminosité avec son exposition Est Ouest, son grand jardin piscinable et son environnement calme. Des travaux d’embellissement sont à prévoir. Concernant les écoles, vous dépendez du Lycée Pierre de Fermat, du collège du Pont Jumeaux et des écoles les Sept Deniers et Le Petit Gragnague. Vous êtes à quelques minutes à pied de la future station de métro Ligne C station Sept Deniers, le bus ligne L1 et 70. Les commerces sont à 5 minutes à pied. Composition de la maison : Au rez de chaussée, une entrée de 3 m². Une grande pièce de vie de 72 m² en forme de L avec un coin salon séjour et un coin cuisine salle à manger donnant sur le jardin et la terrasse. La cuisine est équipée de meubles bas et hauts, d’un four et d’un piano de cuisson 5 feux à gaz. Un wc séparé. Un garage de 26 m² avec un espace buanderie. Au 1er niveau : Un dégagement de 7 m² desservant les 4 chambres et la salle de bain. Une chambre de 11 m². Une chambre de 13.5 m² avec placards. Une chambre de 13.5 m². Une chambre de 14 m² avec placards. Une salle de bain de 4.5 m² avec une baignoire, un meuble vasque et un wc. Au 2ème niveau : Une chambre parentale de 50 m² mansardée dont 14 m² en carrez avec salle d’eau (meuble vasque, douche et wc) et des rangements. Côté extérieur : Un jardin plat et clôturé de 300 m². Un abri de jardin. Côté prestations : Menuiserie en double vitrage. Volets roulants électrique et manuel. Chauffage avec chaudière à gaz. Poêle à bois. Aspiration centralisée. Parquet bois massif. Informations pratiques : Classement énergétique en D. Taxe foncière 2451€ Pour plus de renseignements veuillez contacter l’agence Benoit lannes immobilier. .

Diagnostics de performance énergétique


DPE
DPE

Montant estimé des dépenses annuelles d'énergie pour un usage standard est compris entre 2 490 € et 3 340 € . Prix moyens des énergies indexés sur les années 2021, 2022 et 2023 (abonnements compris).

Descriptif du bien


Code postal 31200


Surface habitable (m²) 156,50 m²


surface terrain 451 m²


Surface loi Carrez (m²) 156,50 m²


Nombre de chambre(s) 5


Nombre de pièces 6


Nombre de niveaux 2


Nb de salle de bains 1


Nb de salle d'eau 1


Cuisine AMERICAINE


Type de cuisine SEMI-EQUIPEE


Mode de chauffage Gaz de ville, Bois


Type de chauffage TRAD_TYPE_CHAUFF_CHAUDIERE, Poêle


Format de chauffage Individuel, Individuel


Nombre de garage 1


Exposition EST-OUEST


Année de construction 1930


Prix de vente 649 000 €


Les honoraires d'agence seront intégralement à la charge du vendeur  


Taxe foncière annuelle 2 451 €


Cette annonce vous intéresse ?


* Champs obligatoires

* : Les informations recueillies sur ce formulaire sont enregistrées dans un fichier informatisé par La Boite Immo agissant comme Sous-traitant du traitement pour la gestion de la clientèle/prospects de l'Agence / du Réseau qui reste Responsable du Traitement de vos Données personnelles. La base légale du traitement repose sur l'intérêt légitime de l'Agence / du Réseau. Elles sont conservées jusqu'à demande de suppression et sont destinées à l'Agence / au Réseau. Conformément à la loi « informatique et libertés », vous disposez des droits d’accès, de rectification, d’effacement, d’opposition, de limitation et de portabilité de vos données. Vous pouvez retirer votre consentement à tout moment en contactant directement l’Agence / Le Réseau. Consultez le site https://cnil.fr/fr pour plus d’informations sur vos droits. Si vous estimez, après avoir contacté l'Agence / le Réseau, que vos droits « Informatique et Libertés » ne sont pas respectés, vous pouvez adresser une réclamation à la CNIL. Nous vous informons de l’existence de la liste d'opposition au démarchage téléphonique « Bloctel », sur laquelle vous pouvez vous inscrire ici : https://www.bloctel.gouv.fr Dans le cadre de la protection des Données personnelles, nous vous invitons à ne pas inscrire de Données sensibles dans le champ de saisie libre.
Ce site est protégé par reCAPTCHA, les Politiques de Confidentialité et les Conditions d'Utilisation de Google s'appliquent.