

Partager sur
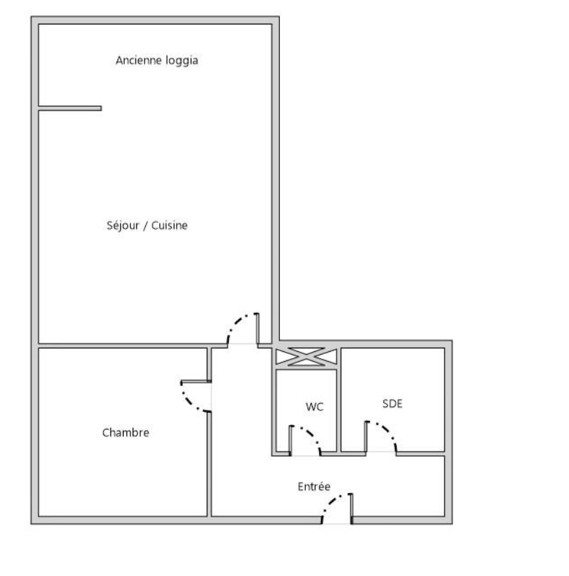
Résidence les Indes Galantes T2 de 39.5 m² plage du Môle. Situé dans la résidence les Indes Galantes à 20 m de la plage du Môle, nous vous proposons ce T2 de 39.5 m² refait entièrement et vendu équipé. Vous disposez d’une place de parking en sous-sol. Vous êtes au 1 er étage d’une résidence très bien entretenue avec jardin et piscine privative face à la mer. Vous disposez d’une chambre séparée, d’un séjour cuisine avec loggia, une salle d’eau et un wc séparé. Vous apprécierez son emplacement au pied de la plage du Môle, sa rénovation intérieure et la qualité de la résidence. Vous êtes à quelques minutes à pied des commerces et animations (Rue de la Flânerie). Composition de l’appartement Une entrée de 5 m². Un séjour cuisine de 22 m² avec sa loggia. La cuisine est meublée et équipée de plaque à induction, hotte aspirante, four, lave-vaisselle et frigo. Une chambre de 8.3m² avec placard aménagé. Une salle d’eau de 3 m² avec douche à l’italienne, un meuble vasque, un espace machine à laver. Un wc séparé. Vous disposez au sein de la résidence d’une place de parking en sous-sol. Informations pratiques : Classement dpe en C Chauffage électrique. Eau chaude collective. Charges de copropriété 129€ avec eau froide et eau chaude comprise. Taxe foncière 973€ Pour plus de renseignement veuillez contacter l’agence Pas de travaux à prévoir.
Montant estimé des dépenses annuelles d'énergie pour un usage standard est compris entre 660 € et 950 € . Prix moyens des énergies indexés sur les années 2021, 2022 et 2023 (abonnements compris).
Code postal 34300
Surface habitable (m²) 40 m²
Surface loi Carrez (m²) 39,50 m²
Nombre de chambre(s) 1
Nombre de pièces 2
Etage 1
Ascenseur OUI
Vue plage
Nb de salle de bains 1
Nb de salle d'eau 1
Cuisine AMERICAINE
Type de cuisine EQUIPEE
Balcon NON
Terrasse NON
Cave NON
Exposition EST
Année de construction 1980
Copropriété OUI
Quote Part annuelle des charges 1 552 €
plan de sauvegarde NON
Prix de vente 159 000 €
Les honoraires d'agence seront intégralement à la charge du vendeur
Charges 129 €
Taxe foncière annuelle 973 €
* : Les informations recueillies sur ce formulaire sont enregistrées dans un fichier informatisé par La Boite Immo agissant comme Sous-traitant du traitement pour la gestion de la clientèle/prospects de l'Agence / du Réseau qui reste Responsable du Traitement de vos Données personnelles.
La base légale du traitement repose sur l’intérêt légitime de l'Agence / du Réseau.
Elles sont conservées jusqu'à demande de suppression et sont destinées à l'Agence / au Réseau.
Conformément à la loi « informatique et libertés », vous pouvez exercer votre droit d'accès aux données vous concernant et les faire rectifier en contactant l'Agence / le Réseau.
Si vous estimez, après avoir contacté l'Agence / le Réseau, que vos droits « Informatique et Libertés » ne sont pas respectés, vous pouvez adresser une réclamation à la CNIL.
Nous vous informons de l’existence de la liste d'opposition au démarchage téléphonique « Bloctel », sur laquelle vous pouvez vous inscrire ici : https://www.bloctel.gouv.fr
Dans le cadre de la protection des Données personnelles, nous vous invitons à ne pas inscrire de Données sensibles dans le champ de saisie libre
Ce site est protégé par reCAPTCHA, les Politiques de Confidentialité et les Conditions d'Utilisation de Google s'appliquent.