06 31 63 48 51
Siège social89 Chemin de la Salade Ponsan - 31400 Toulouse
30 Rue Marie Magné - 31300 Toulouse

T4 bis en duplex dernier étage avec terrasse


< Retour

Partager sur

gallery loader
Coup de coeur

Duplex 104 m² - 4 Pièces - Blagnac 329 000


Description de l'offre Ref 468


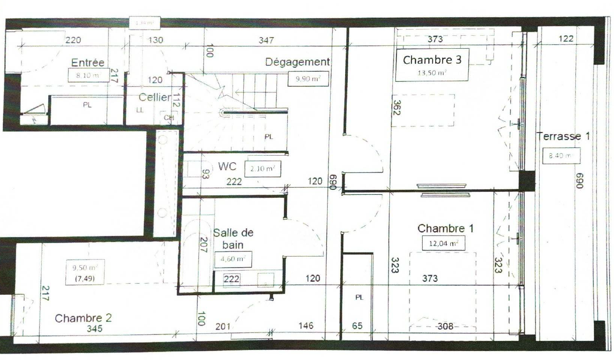
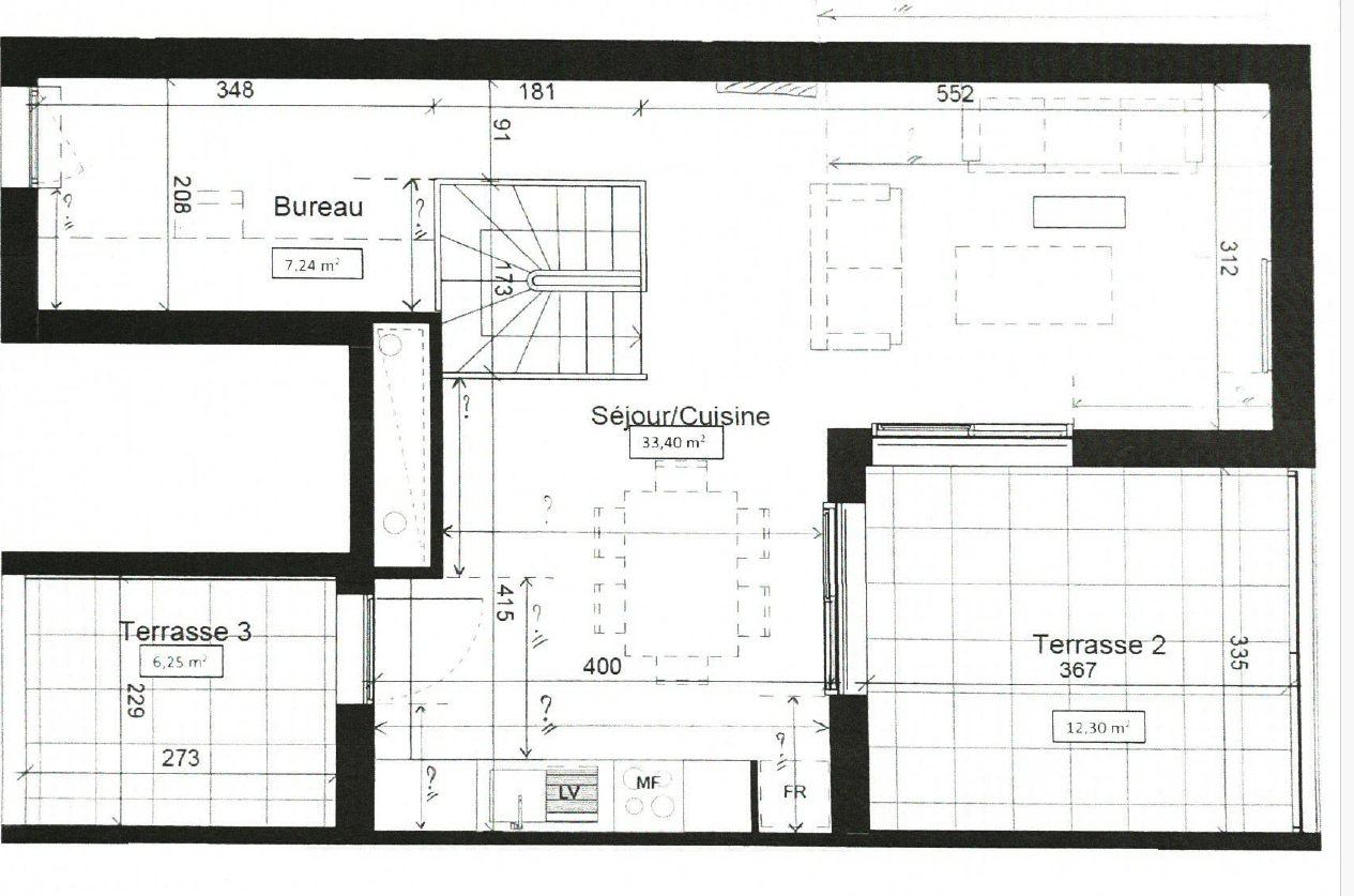
T4 bis en duplex dernier étage avec terrasse. Situé boulevard Alain Savary face au parc, nous vous proposons ce T4 bis de 104 m² en duplex avec 3 terrasses et 2 places de parking boxables au dernier étage d’une résidence de 2020. Il se compose au rez de chaussée de 3 chambres avec placards, d’une salle d’eau et wc séparé et une première terrasse donnant sur le parc. A l’étage un grand salon sejour cuisine avec 2 terrasses et un espace bureau. Vous serez séduit par sa luminosité, son confort et la vue dégagée depuis les terrasses. Vous êtes proche du tramway ligne T1, du lycée Saint Exupery et des commerces. Aucuns travaux à prévoir !   Composition de l’appartement : Au rez de chaussée : Une entrée de 5 m² avec placards. Une chambre de 13.5 m² avec placards donnant sur une terrasse. Une chambre de 12 m² donnant sur la terrasse. Une chambre de 10 m² transformée en dressing. Une salle d’eau de 5 m² avec douche à l’Italienne et un meuble double vasque. Une buanderie de 1.5 m². Un wc séparé de 1.5 m². Une terrasse de 10.5 m² en bois avec vue sur le parc.   Au premier étage : Un salon séjour cuisine de 30 m² donnant sur 2 terrasses. Cuisine meublée et équipée du four, plaques, hotte aspirante et lave-vaisselle. Un espace bureau de 7 m². Une terrasse de 12 m² donnant sur le parc. Une terrasse de 6 m².   Prestations : Vous disposez de 2 places de parking sécurisées et en sous-sol côte à côte. Elles peuvent se transformer en garage. Un garage à vélo. Menuiserie en double vitrage avec volet roulant électrique. Chaudière à condensation.   Informations pratiques : Classement DPE en C faible consommation énergétique. Taxe foncière de 2265€/an. Charges de copropriété de 134€/mois eau comprise. Pour plus de renseignement veuillez contacter l’agence.      

Diagnostics de performance énergétique


DPE
DPE

Montant estimé des dépenses annuelles d'énergie pour un usage standard est compris entre 1 000 € et 1 410 € . Prix moyens des énergies indexés sur les années 2021, 2022 et 2023 (abonnements compris).

Descriptif du bien


Code postal 31700


Surface habitable (m²) 104 m²


Surface loi Carrez (m²) 104 m²


Nombre de chambre(s) 3


Nombre de pièces 4


Etage 5


Nombre de niveaux 1


Ascenseur OUI


Vue Sur le parc


Nb de salle de bains 1


Nb de salle d'eau 1


Cuisine AMERICAINE


Type de cuisine EQUIPEE


Mode de chauffage Gaz de ville


Type de chauffage TRAD_TYPE_CHAUFF_CHAUDIERE


Format de chauffage Individuel


Visiophone OUI


Terrasse OUI


Cave NON


Année de construction 2020


Quote Part annuelle des charges 1 600 €


plan de sauvegarde NON


Prix de vente 329 000 €


Les honoraires d'agence seront intégralement à la charge du vendeur  


Charges 134 €


Taxe foncière annuelle 2 265 €


Cette annonce vous intéresse ?


* Champs obligatoires

* : Les informations recueillies sur ce formulaire sont enregistrées dans un fichier informatisé par La Boite Immo agissant comme Sous-traitant du traitement pour la gestion de la clientèle/prospects de l'Agence / du Réseau qui reste Responsable du Traitement de vos Données personnelles. La base légale du traitement repose sur l'intérêt légitime de l'Agence / du Réseau. Elles sont conservées jusqu'à demande de suppression et sont destinées à l'Agence / au Réseau. Conformément à la loi « informatique et libertés », vous disposez des droits d’accès, de rectification, d’effacement, d’opposition, de limitation et de portabilité de vos données. Vous pouvez retirer votre consentement à tout moment en contactant directement l’Agence / Le Réseau. Consultez le site https://cnil.fr/fr pour plus d’informations sur vos droits. Si vous estimez, après avoir contacté l'Agence / le Réseau, que vos droits « Informatique et Libertés » ne sont pas respectés, vous pouvez adresser une réclamation à la CNIL. Nous vous informons de l’existence de la liste d'opposition au démarchage téléphonique « Bloctel », sur laquelle vous pouvez vous inscrire ici : https://www.bloctel.gouv.fr Dans le cadre de la protection des Données personnelles, nous vous invitons à ne pas inscrire de Données sensibles dans le champ de saisie libre.
Ce site est protégé par reCAPTCHA, les Politiques de Confidentialité et les Conditions d'Utilisation de Google s'appliquent.